En proceso
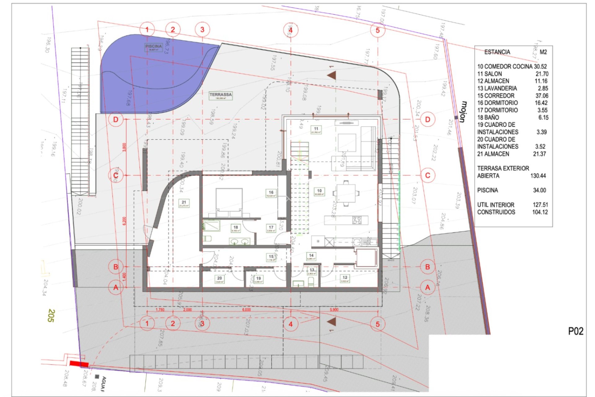
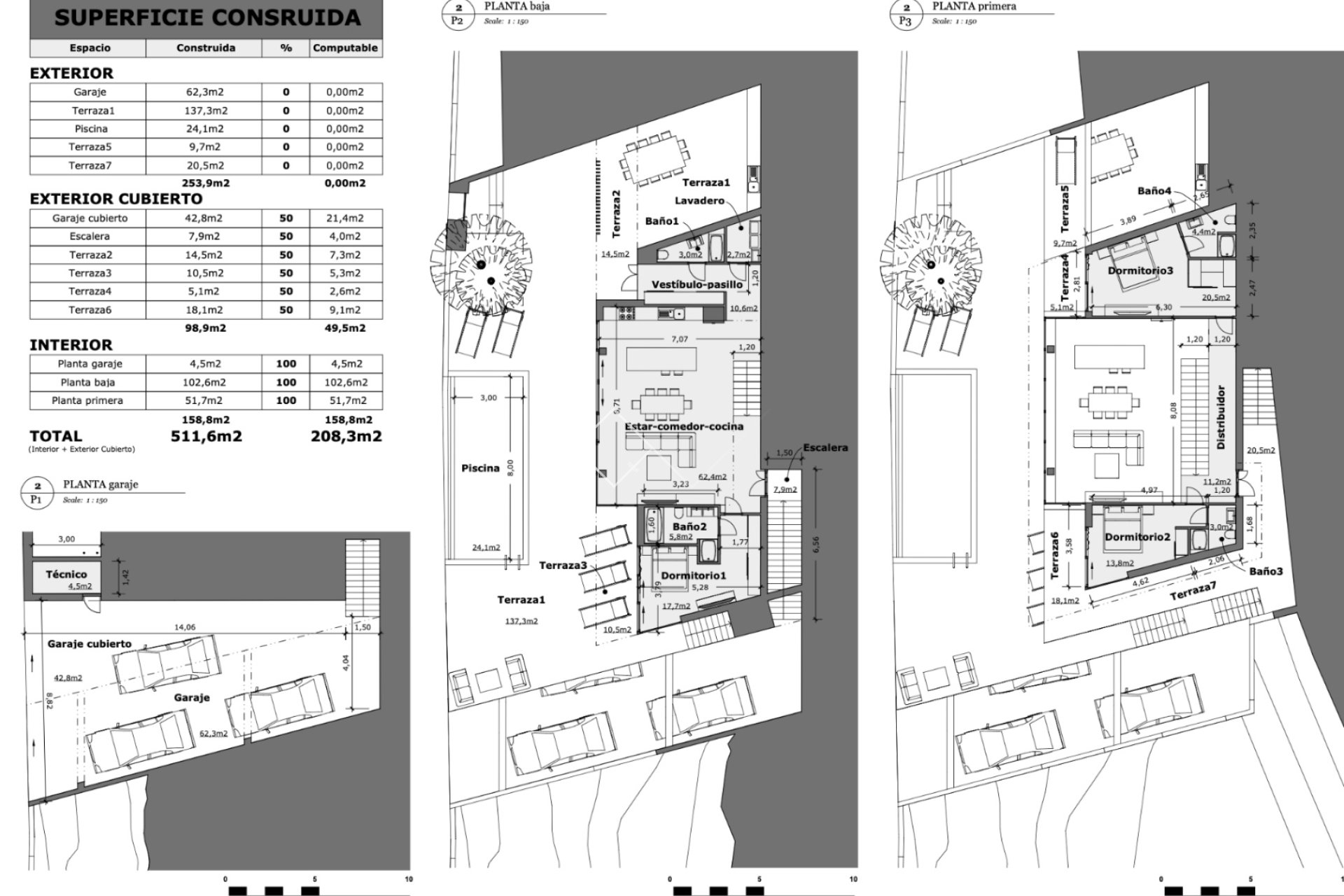
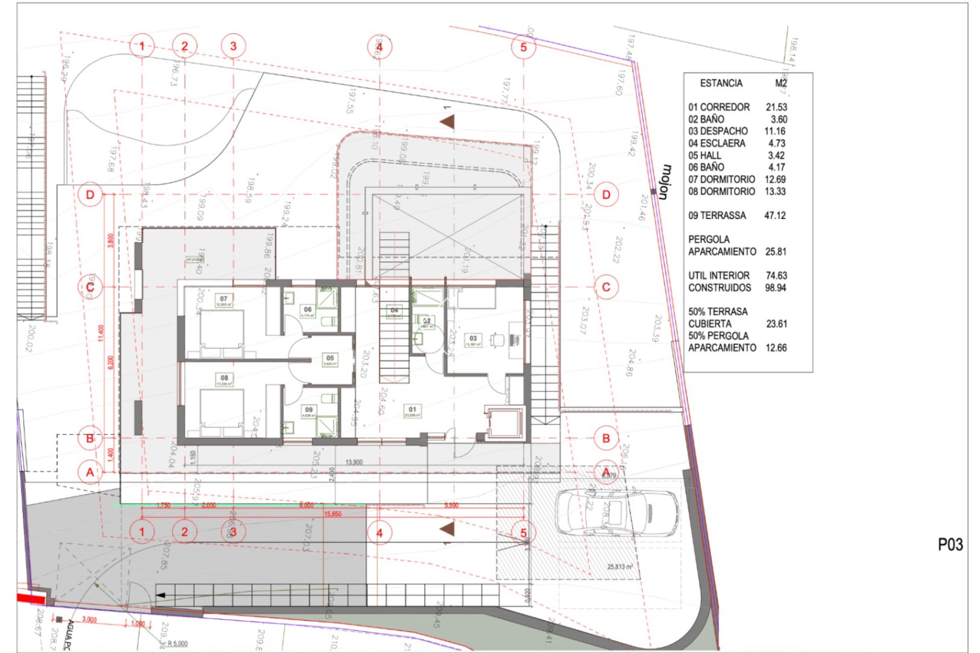
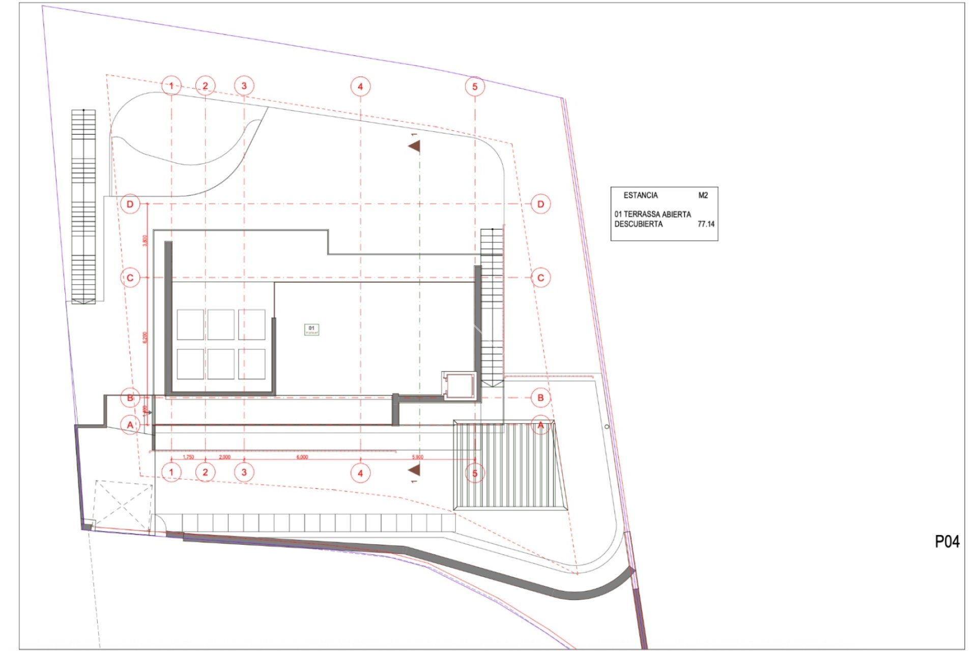
Presentamos una oportunidad irrepetible de adquirir una villa de diseño moderno en una de las zonas residenciales más prestigiosas de la Costa Blanca: Cumbre del Sol, en Benitachell. Este enclave privilegiado, situado entre Jávea y Moraira, ofrece un entorno incomparable donde la naturaleza, la serenidad y el confort de alto nivel se funden en perfecta armonía. Este exclusivo proyecto contempla la construcción de una elegante villa unifamiliar de 276 m² distribuidos en dos niveles. La vivienda dispone de 3 dormitorios, 1 oficina, 5 baños, y generosos espacios de día con salón, comedor y cocina integrados en un concepto abierto, lleno de luz natural. El diseño contempla además una amplia terraza panorámica y una piscina privada de 34 m², ideal para disfrutar de momentos de relax con impresionantes vistas al mar Mediterráneo y a las montañas circundantes. Cada detalle de la vivienda ha sido cuidadosamente planificado para ofrecer un estilo de vida de lujo discreto, con acabados de primera calidad y materiales seleccionados para garantizar durabilidad, estética y funcionalidad. Situada a escasos minutos del renombrado colegio internacional Lady Elizabeth School, esta propiedad es ideal para familias que buscan una residencia segura, con calidad de vida y proximidad a todos los servicios, además de disfrutar de las playas, calas y puertos deportivos de Moraira y Jávea. Una inversión segura en calidad, ubicación y estilo de vida. No dudes contactarnos para más información o para concertar una visita a este magnífico proyecto.
Benitachell, también conocido como El Poble Nou de Benitatxell, es un encantador pueblo estratégicamente ubicado en la Costa Blanca Norte, entre Moraira y Jávea.
El municipio se divide en dos partes bien diferenciadas: el casco antiguo, que se encuentra en el interior, y la moderna urbanización Cumbre del Sol, una lujosa zona residencial situada en la costa que ofrece vistas panorámicas al mar y a los bellos entornos naturales de alrededor.
El casco antiguo de Benitachell te resultará encantador. Es un reflejo de la arquitectura tradicional de la Costa Blanca, con calles estrechas y empinadas donde se respira un ambiente sereno. Destaca la iglesia de Santa María Magdalena, una joya arquitectónica del siglo XVIII, situada en el punto más alto de la población.
Con acantilados escarpados y aguas azul turquesa, la pequeña costa de Benitachell es verdaderamente espectacular. Se caracteriza por su belleza natural y su ambiente tranquilo. Es el lugar perfecto para disfrutar de una experiencia única, desde explorar grutas submarinas hasta disfrutar de la tranquilidad de playas poco concurridas.
El excelente clima mediterráneo que se goza en esta zona, permite que cualquier época del año sea ideal para caminar por el campo repleto de viñedos o pasear en bicicleta. Encontrarás rutas de senderismo perfectamente señalizadas para acceder a las calas más importantes, como:
Cumbre del Sol no solo proporciona un entorno residencial exclusivo, sino que también asegura que sus residentes disfruten de una calidad de vida alta con todos los servicios necesarios para vivir y disfrutar durante todo el año. Dispone de:
Benitachell es un lugar lleno de encanto y belleza, que ofrece una mezcla única de historia, cultura y belleza natural. En su entorno cuenta con modernas urbanizaciones como Cumbre del Sol, Racó de Nadal, Golden Valley, Jazmines, Les Fonts… habitadas en su mayor parte por una población multicultural procedente de países del norte de Europa.
Si sueñas con comprar una vivienda en España, nuestras casas en venta en Benitachell no te dejarán indiferente. Comprueba lo fácil que resulta buscar una propiedad en venta en la Costa Blanca. Sólo tienes que contactar con ORANGE VILLAS y uno de nuestros expertos agentes inmobiliarios te atenderá en tu idioma.